植物に囲まれた心地よい暮らしを楽しむ、神奈川の注文住宅

ご夫婦の夢を重ねて生まれた、趣味と安らぎが調和する家

神奈川県秦野市に、「観葉植物に囲まれて暮らしたい」という夢を叶えた一邸が完成しました。大きな吹き抜けからたっぷりの光が降り注ぐリビングは、まるで室内にいながら森林浴をしているかのような心地よさ。奥様が望んだ「ゆったりとした生活スペース」と、ご主人の「植物と過ごす空間」という、ご夫婦それぞれの想いを見事に両立した注文住宅です。

基本情報

  • 敷地面積:194.47㎡㎡
  • 延べ床面積:117.4㎡㎡
  • 工法:テクノストラクチャー
  • 竣工:2024年9月
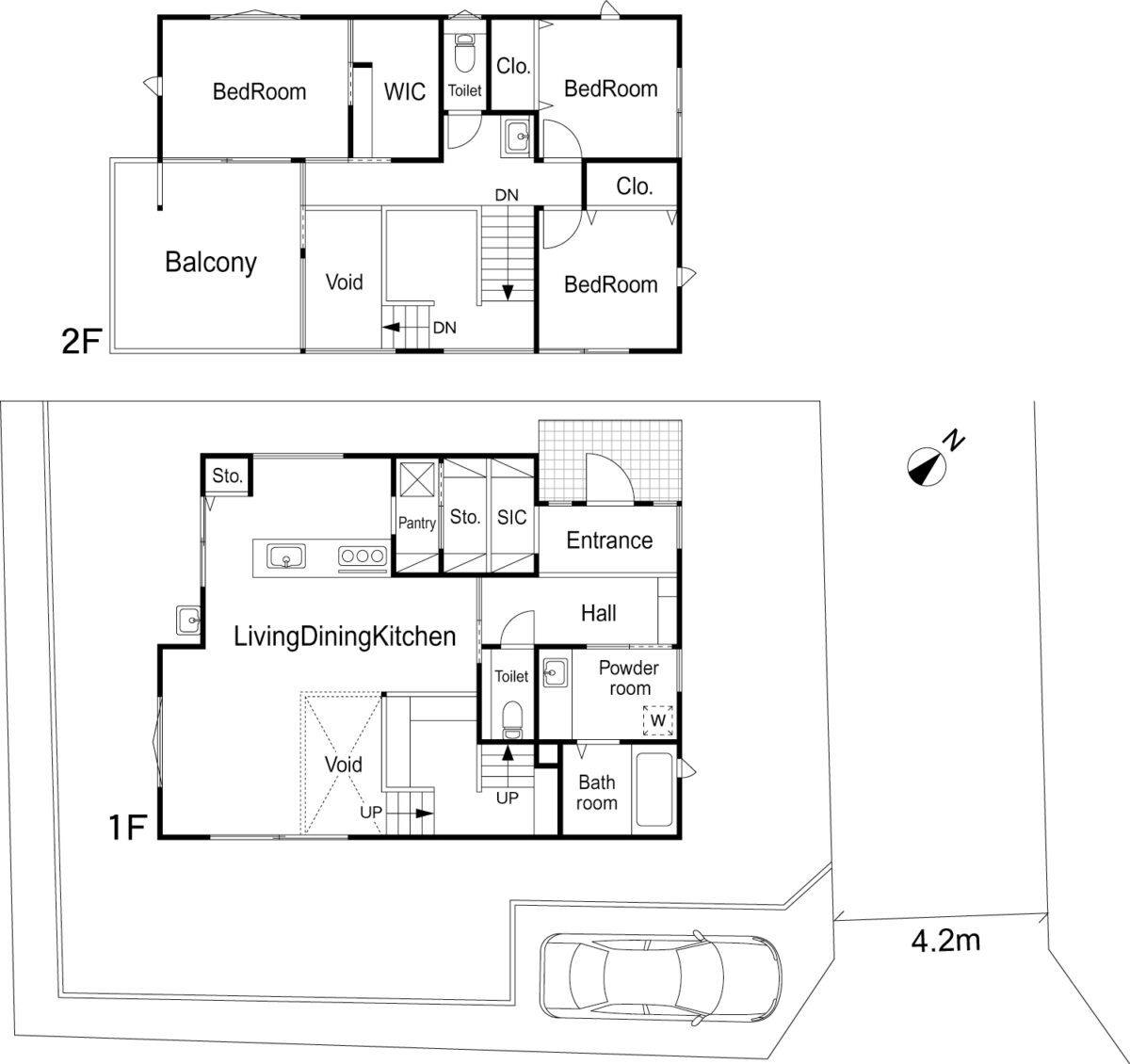
間取り

吹き抜けを介して緩やかに繋がるLDKは、思い思いに過ごしていても家族の気配を感じられる心地よい空間

私たちの家づくりは、お客様一人ひとりのライフスタイルに寄り添うことから始まります。今回のお住まいでは、植物の育成に欠かせない温度や光量を管理できる特別な一部屋を確保。趣味を存分に楽しむ空間がありながら、リビングやダイニングは家族がのびのびと過ごせる開放的なつくりになっています。

これを実現するのが、耐震住宅工法『テクノストラクチャー』。柱や壁の少ない大空間やダイナミックな吹き抜けを可能にし、家族のつながりと個々の時間を大切にする、自由で快適な間取りをご提案します。観葉植物という趣味を通して、家族の暮らしがさらに豊かになる。そんな理想を形にした住まいです。

外観

落ち着いた色合いで仕上げた、シンプルながらも洗練された印象の外観。

玄関アプローチ

木目調のドアと軒天がアクセント。異素材を組み合わせ、温かみとモダンな雰囲気を両立。

リビングダイニング

ご主人の「植物に囲まれたい」という夢を叶えた空間。

 

 

リビング

趣味の植物に囲まれたリビングは、ソファで寛ぎながら好きなものを眺める特等席。

 

吹き抜け

吹き抜けとスキップフロアを組み合わせることで、空間に立体感と広がりを演出。

 

スキップフロア

空間を立体的に活用するスキップフロア。階段まわりも、お気に入りを飾る絶好のディスプレイスペースに。

 

ワークスペース

スキップフロアに設けたワークスペース。

 

2階ホール

日当たりの良い2階ホールは、たくさんの植物たちが気持ちよさそうに並ぶ特等席。

 

植物LABO

育成ライトや空調を完備した、ご主人こだわりの「植物LABO」。

洗面室

広々とした木のカウンターが印象的な造作の洗面台。

 

玄関

お客様を迎える玄関も、お気に入りのグリーンでお出迎え。

 

玄関ホール

玄関から洗面室やキッチンへ直接アクセス。帰宅後の動きがスムーズになるよう工夫された間取り。

INTERVIEW
光が満ち、機能性豊かな、心地よい暮らし

「家の広さは2倍近くになって、照明も増え、大きな吹抜けもあるのですが、電気代は以前とほとんど変わっていません。断熱性能が高いことと、太陽光発電システムを採用したおかげだと思います」と話してくださったR様。
秦野市の新居には、ご趣味の観葉植物が心地よさそうに並びます。高い住宅性能が、植物にとっても快適な環境と、経済的に優しい暮らしを両立させました。
日々の暮らしの心地よさについて尋ねると、柔らかな笑顔でこう続けてくれました。
「窓が大きく、昼間は本当に明るくて快適、昨冬も外気温を気にすることなく快適に過ごせました」
自然の光がやさしく暮らしに溶け込み、ご家族にとって心地よい時間が流れる住まいになりました。

理想の住まいは「土地探し」から。

「趣味の植物と、家族の暮らし」。その両方を叶える土地探しから、R様の家づくりは始まりました。弊社では、まずお客様の想いを丁寧にうかがい、建築のプロの視点も交えながら、ご家族の暮らしに最適な土地をご提案。土地探しから設計・施工まで、お客様に寄り添い、ワンストップで理想の住まいづくりをサポートいたします。